Accueil > Nos biens à la vente > En France > APPARTEMENT NEUF T3 AVEC BALCON à BISCARROSSE BOURG centre ville
Nouveau
Nouveau

APPARTEMENT NEUF T3 AVEC BALCON à BISCARROSSE BOURG centre ville

HONORAIRES INCLUS A LA CHARGE DU VENDEUR Prix : 309 000 €
Référence : lkvB1021
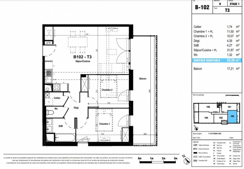
Surface habitable : 65m²
AI2G votre agence immobilière spécialiste de la transaction immobilière située au cœur du quartier des Chartrons à Bordeaux (33000), vous propose à la vente cet appartement T3 de 65m² avec un grand balcon, situé à Biscarrosse (40600) commune très prisée des Landes à 1h de Bordeaux. 
Cet appartement NEUF de 3pièces se compose de :
  • un espace séjour/cuisine de 32m²
  • un cellier 
  • deux belles chambres avec placards 
  • une salle de bain
  • un WC indépendant 
  • grand balcon (exposé EST) de 17m²
  • deux places de parking aérien
Ce T3 neuf au 1er étage (sur deux) d'une résidence sécurisée composée de 23 logements répartis sur deux bâtiments conviendra parfaitement pour accession ou investissement (éligible PINEL). LIVRAISON PREVUE FIN 2024. Frais de notaire REDUITS.

Les informations sur les risques auxquels ce bien est exposé sont disponibles sur le site Géorisque : www.georisque.gouv.fr
Pour tout renseignement concernant cet appartement 3 pièces contactez GILLES DIGARD agence AI2G 16 quai des Chartrons 33000 Bordeaux. 
D'autres appartements (T2 et T3) sont disponibles à l'achat sur la résidence.
Voir nos honoraires
Localisation CENTRE BOURG BISCARROSSE
Référence lkvB1021
Prix 309000€
Nombre de pièces 3
Surface habitable 65m²
Surface séjour 32m²
Année de construction 2024
Niveaux 2
Nombre de lots de la copropriété 23
Copropriété oui
Étage 1
Ascenseur non
Extérieur balcon 17m²
Chauffage indiv gaz chaudière
Contactez-nous
Les champs indiqués par un astérisque (*) sont obligatoires
Nos autres biens
Recherche T2 avec loggia et mezzanine dans la commune de BISCAROSSE
Nouveau

APPARTEMENT NEUF T2 DUPLEX avec LOGGIA à BISCARROSSE

Prix : 245 000 €
AI2G votre agence immobilière spécialiste de la transaction de maisons et appartements, située au cœur du quartier des...